ΚΕΝΤΡΙΚΗ ΣΕΛΙΔΑ

Έργα - Ανεγέρσεις Οικοδομών

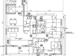
Πολυκατοικία στην Κυψέλη
Κατηγορία  :  Ανεγέρσεις Οικοδομών
Τόπος  :  Κυψέλη
Πολυκατοικία με πολυτελή οροφοδιαμερίσματα στην Κυψέλη - κοντά στα δικαστήρια. Το έργο υπολογίζεται να ολοκληρωθεί στο τέλος του 2007. Αποτελείται απο 4 οροφοδιαμερίσματα και 1 μεζονέτα στον 5ο και 6ο όροφο. Τα οροφοδιαμερίσματα είναι περίπου 90τμ. και η μεζονέτα περίπου 143 τμ.
Φωτογραφίες έργου
Μεγαλύτερη φωτογραφία Μεγαλύτερη φωτογραφία Μεγαλύτερη φωτογραφία Μεγαλύτερη φωτογραφία Μεγαλύτερη φωτογραφία Μεγαλύτερη φωτογραφία Μεγαλύτερη φωτογραφία Μεγαλύτερη φωτογραφία Μεγαλύτερη φωτογραφία

Σχετικά προϊόντα
© 2001-2025 Α. Γράψας. All content is copyrighted, please read the legal notice for more info.
Find us on Facebook Follow us on Twitter Find us on Linked In